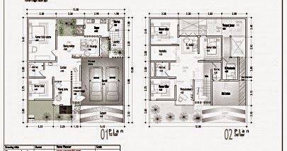
View Minimalis Ukuran 7X15 Denah Rumah 7X15 2 Lantai Pictures. ✅ berikut ini inspirasi untuk rumah idaman contoh 17: Denah rumah minimalis terdiri dari bagian interior yang ringkas dan biaya pembangungan yang murah.
Desain rumah minimalis 2 lantai milik bapak adam di serpong, banten ini memiliki luasan bangunan 185,5 m2 yang berdiri di lahan berukuran 15 x 7,5 meter.
Desain rumah minimalis ukuran 7x12 youtube via youtube.com. 4 kreasi denah rumah 8x15 2 lantai minimalis rumahminimalisprocom via rumahminimalispro.com. Untuk membuat rumah minimalis anda menjadi lebih lengkapnya, langsung saja baca: Ruangan tipe comforta, rumah minimalis 2 lantai modern, ukuran tapak 5×11 meter, untuk kavling minimal 6×15 meter, menghadap utara, barat dan timur.
